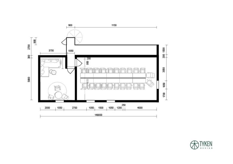
A big producer of paint wanted to have a floor plan and suggestion of how to display color samples on the balcony outside the conference area. This area is overlooking the testing area and was supposed to be the transition into the meeting room. The producer produces everything from paints for interior to facade and tin roof which should reflect in the display area.

Wall section views of balcony. 



